Thiết kế nhà lô hiện đại 3 tầng mặt tiền 6 m
Xã hội hiện đại ngày nay, cuộc sống ngày càng bon chen, dân số ngày càng gia tăng, đất chật ,người đông. Cho nên diện tích đất xây nhà rộng rãi là rất ít, chủ yếu là diện tích đất có mặt tiền hẹp và chạy dài. Chính vì lí do trên, những thiết kế nhà lô hiện đại ngày càng được các nhà đầu tư ưa thích và chon lựa để xây dựng.Và đây cũng là một trong những một trong những thế mạnh của công ty VnHome chúng tôi. Với đội ngũ kĩ sư, kiến trúc sư đầy nhiệt huyết của VnHome, chúng tôi hoàn toàn tự tin vào khả năng của mình, có thể làm hài lòng mọi yêu cầu của khách hàng. Đây là mẫu thiết kế nhà lô hiện đại mà công ty VnHome chúng tôi rất tâm đắc. Ngôi nhà lô hiện đại được tạo từ khối hình và đường nét vuông vắn, sắp đặt các mảng khối theo đường nét ngang để đánh lừa thị giác người nhìn, giảm bớt đi đáng kể sự gò bó của loại hình nhà phố cao tầng có diện tích hẹp, tạo cho mặt tiền ngôi nhà có cảm giác như rộng ra hơn.
Thiết kế nhà lô hiện đại 3 tầng mặt tiền 6 m -VNH NLHD 0009
| Chủ đầu tư | Anh Hải | Mã dự án | VNH NLHD 0009 |
| Địa chỉ | Kiến An - Hải Phòng | Diện tích | 6 X 12,5 M |
| Hạng mục | Mẫu thiết kế nhà lô đẹp | Số tầng | 3 tầng |
| Đơn vị thiết kế | Công ty CP Kiến Trúc - Đầu Tư Xây Dựng VN Home | Năm thiết kế | 2017 |
Thiết kế nhà lô hiện đại 3 tầng mặt tiền 6 m tại Kiến An - Hải Phòng
Hình ảnh phối cảnh mặt tiền của căn nhà lô 3 tầng mặt tiền 6 m
.jpg)
Mặt bằng tầng 1 của nhà lô hiện đại 3 tầng mặt tiền 6 m
.jpg)
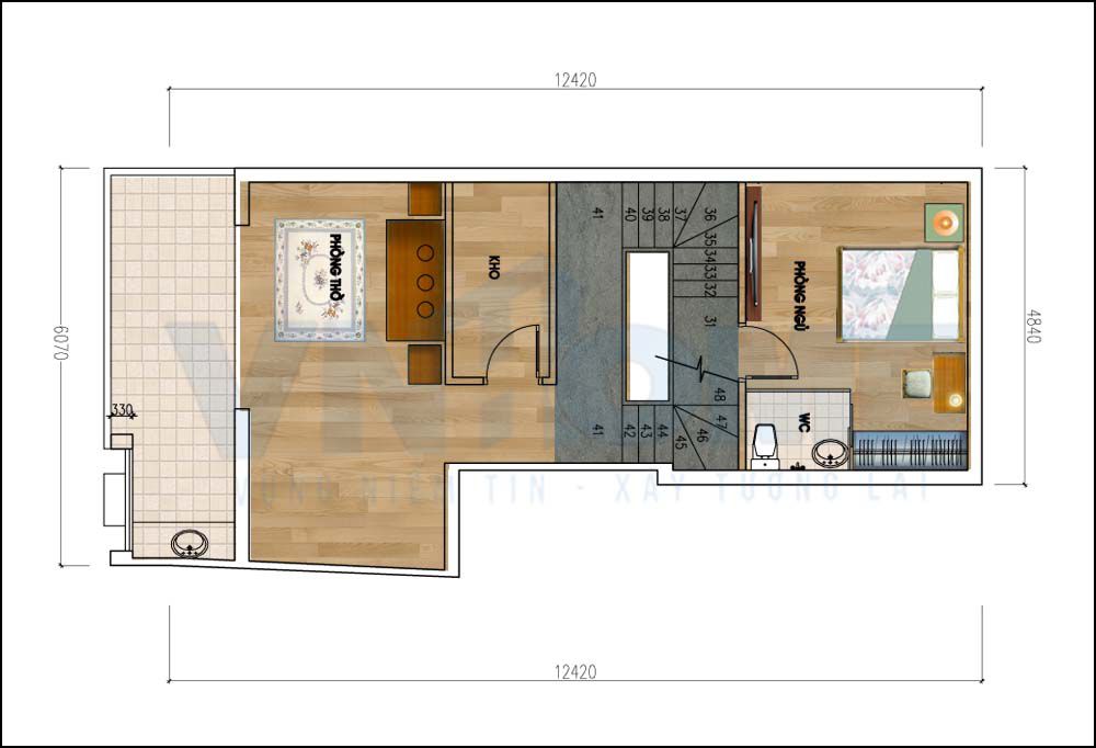
Mặt bằng tầng 2 của căn nhà lô hiện đại 3 tầng mặt tiền 6 m
.jpg)
Mặt bằng tầng 3 nhà lô hiện đại tại Hải Phòng
.jpg)
Mặt bằng tầng mái nhà lô hiện đại 3 tầng mặt tiền 6 mtại Hải Phòng












