Do tính chất công việc và mức sống ngày càng cao của con người, nhà lô phố ngày càng nhiều, kiến trúc đang là vấn đề được quan tâm hàng đầu xã hội, và lý tưởng nhất đó chính là mẫu thiết kế nhà lô hiện đại.Với những hình khối dơn giản nhưng lại mang lại cho căn nhà có được vẻ đẹp riêng.
Thiết kế nhà lô hiện đại 2,5 tầng tại Hải Phòng - VNH NLHĐ 0003
| Chủ đầu tư | Anh Tiệp | Mã dự án | VNH NLHĐ 0003 |
| Địa chỉ | An Lão - Hải Phòng | Diện tích | 6 m x 15m |
| Hạng mục | Thiết kế nhà lô hiện đại | Số tầng | 2.5 tầng |
| Đơn vị thiết kế | Công ty CP Kiến Trúc - Đầu Tư Xây Dựng VN Home | Năm thiết kế | 2017 |
Thiết kế nhà lô hiện đại 2.5 tầng 2 mặt tiền mặt tiền 6m tại Hải Phòng
Thiết kế nhà lô hiện đại 3 tầng của VNHome nổi bật giữa khu phố lớn, hấp dẫn người nhìn bởi sân thượng với nhiều cây cảnh tạo nên vẻ tươi mát với mái che cách điệu. Màu trắng phối nâu cùng những ô cửa kính nhỏ, rèm trắng của căn nhà lô này lại càng thể hiện sự hiện đại, mới mẻ và tạo cảm giác thoải mái. Hệ thống đèn dày đặc xung quanh mái che chắc chắn sẽ làm sáng bừng không gian của thiết kế nhà lô hiện đại lúc về đêm, cùng với các hình khối vuông, chữ nhật đứng và nằm, hẳn sẽ là điểm nhấn của khu phố.
Cửa sổ làm bằng kính tạo không gian mở cho nhà lô hiện đại 3 tầng

Mặt bằng tầng 1 của nhà lô hiện đại với phòng khách, phòng ngủ và phòng bếp rộng, wc chung

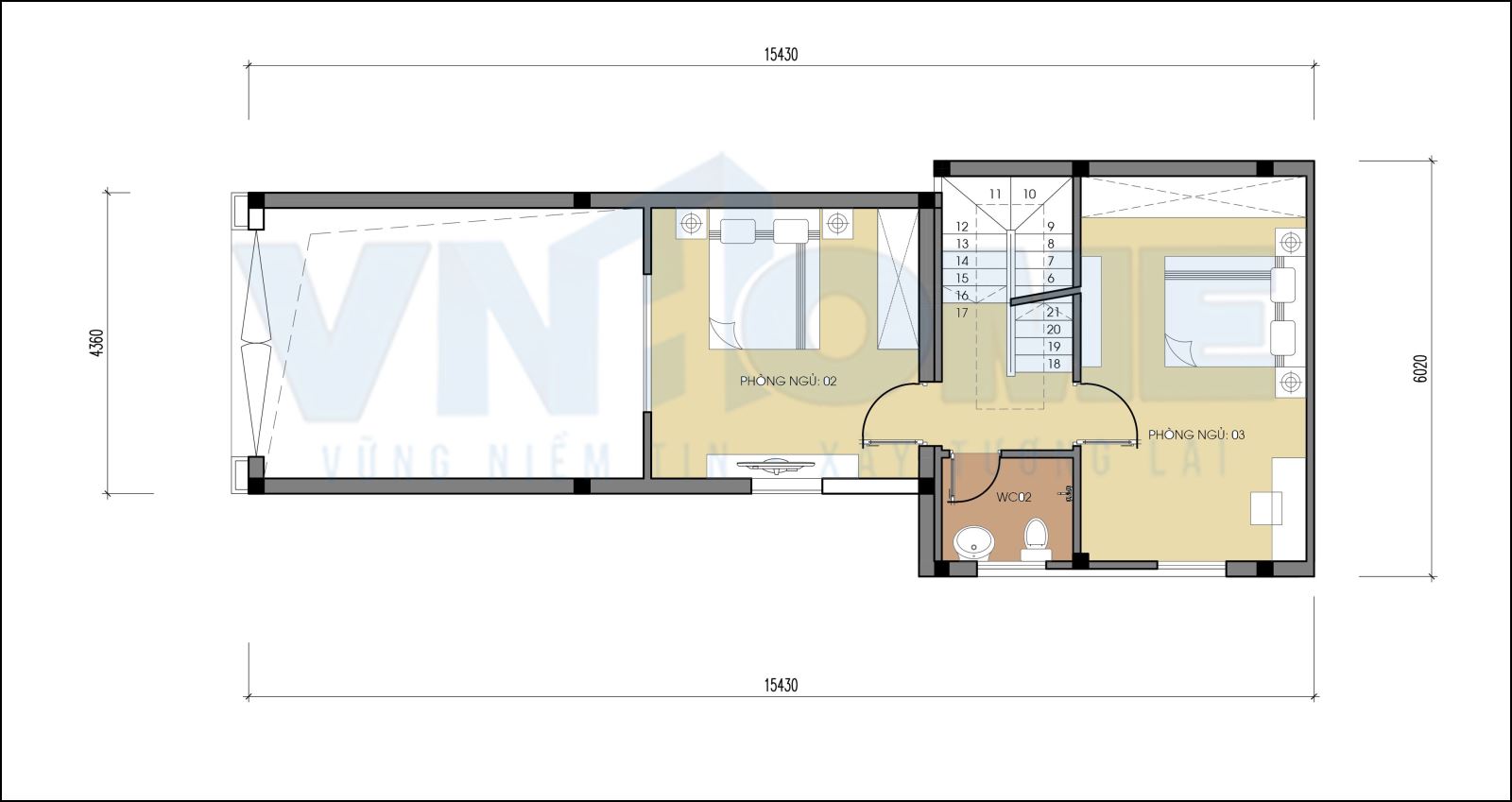
Tầng lửng của căn nhà lô 2,5 tầng mặt tiền 6 m
.jpg)
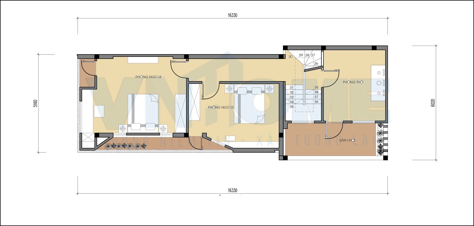
Mặt bằng công năng tầng 2 với 2 phòng ngủ, phòng thờ và sân thượng dài, thích hợp bố trí nhiều loại cây cảnh












