Thiết kế nhà lô cổ điển 3 tầng mặt tiền 7 m
Nếu bạn đang tìm một kiến trúc cuốn hút, dịu dàng mà không kém phần lãng mạn thì thiết kế nhà lô cổ điển 3 tầng của VNHome chính là sự lựa chọn hoàn hảo và chính xác nhất.
Thiết kế nhà lô cổ điển 3 tầng làm say đắm lòng người bởi những đường nét uyển chuyển mà tinh tế đến lạ, mềm mại nhưng sang trọng,cùng hệ thống đèn tường làm tăng vẻ lung linh cho căn nhà lúc về đêm. Tuy ban công giới hạn về diện tích nhưng tại đây, gia chủ có thể nhìn hết được quang cảnh dưới đường sau lan can được thiết kế theo phong cách hoàng gia, với tông trắng hòa quyện tài tình với màu sơn tổng thể của nhà lô cổ điển. Một chút màu vàng điểm nhẹ ở mỗi tầng như tô điểm thêm sự hấp dẫn người nhìn đối với căn nhà này. Mặt tiền tầng 1 ốp đá vân, đây rõ ràng là dấu chấm của kiến trúc cổ điển thời thượng. Cửa sổ bằng gỗ bình dị nhưng cánh cổng lại làm bằng kim loại mạ vàng, với những hoa văn sắc nét, đẹp tuyệt vời đã làm tăng đẳng cấp của căn nhà lô cổ điển này. Những chậu cây cảnh được đặt ở ban công tầng 2 và ở 2 bên cổng tuy không nhiều và dày đặc nhưng hợp lý, cũng đủ làm nên một không gian xanh ngắt, dịu dàng.
Thiết kế nhà lô cổ điển 3 tầng mặt tiền 7 m - VNH NLCĐ 0002
| Chủ đầu tư | Anh Hùng | Mã dự án | VNH NLCĐ 0002 |
| Địa chỉ | Hồng Bàng - Hải Phòng | Diện tích | 7m X 11m |
| Hạng mục | Mẫu thiết kế nhà lô đẹp | Số tầng | 3 tầng |
| Đơn vị thiết kế | Công ty CP Kiến Trúc - Đầu Tư Xây Dựng VN Home | Năm thiết kế | 2017 |
Thiết kế nhà lô cổ điển 3 tầng mặt tiền 7 m tại Hải Phòng
.jpg)
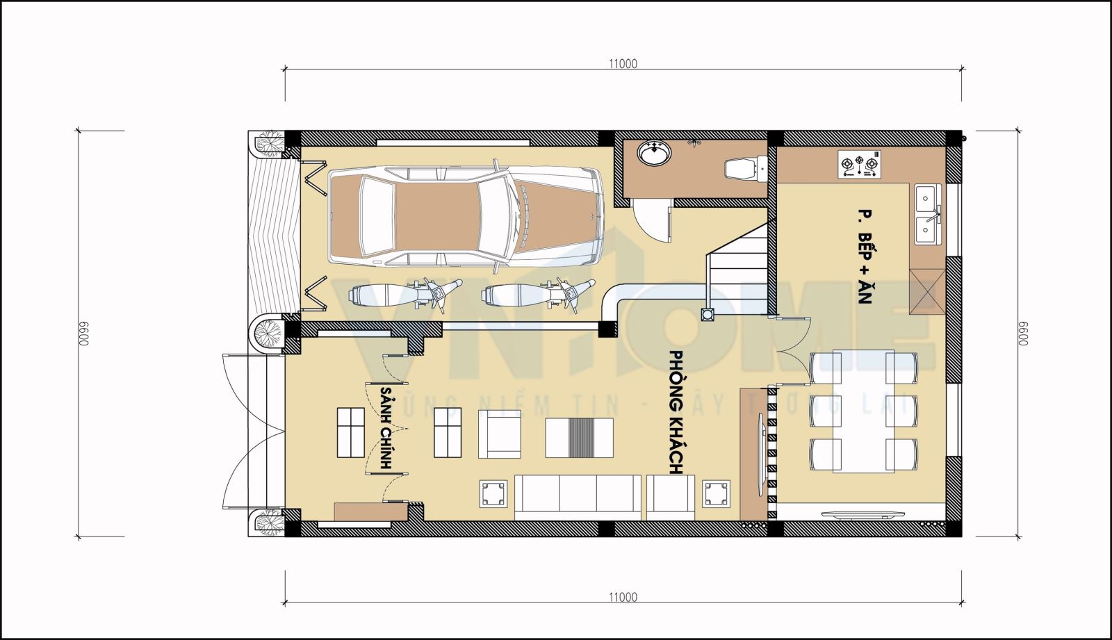
Mặt bằng công năng tầng 1 của nhà lô cổ điển tại Hải Phòng.
.jpg)
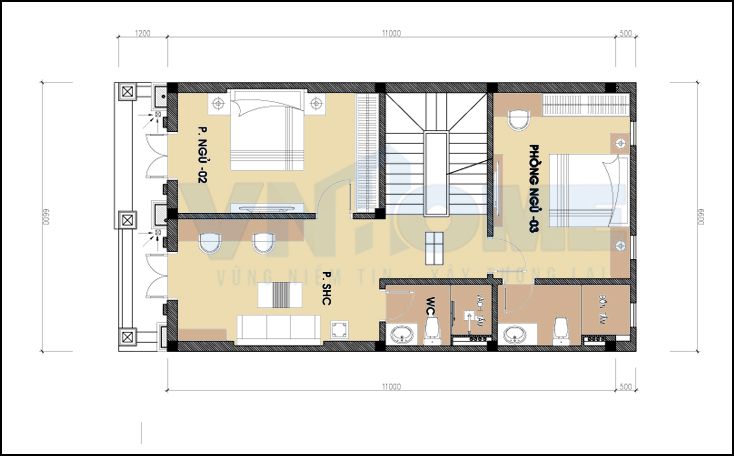
Bản vẽ bố trí mặt bằng công năng tầng 2 thiết kế nhà lô cổ điển 3 tầng.
.jpg)
Mặt bằng công năng sử dụng tầng 2 của căn nhà lô cổ điển mặt tiền 7 m
.jpg)











