Biệt thự tân cổ điển 2,5 tầng mặt tiền 8,5 m
Để tìm một thiết kế mà tiềm ẩn trong đó là sự hòa quyện tài tình giữa cổ điển và hiện đại thì chỉ có thể là biệt thự tân cổ điển.Thiết kế biệt thự tân cổ điển 2 tầng nổi bật trong sân rộng, tường bao trắng. Với sự kết hợp hài hòa của hoa văn và hình khối cổ điển, vẻ lộng lẫy của căn biệt thự lại được tôn thêm nhờ đèn trùm ở ban công tầng 2 và sảnh tầng 1, mang phong thái quý tộc mà không rườm rà. Biệt thự tân cổ điển với những cột to song song, đối xứng nhau đồng điệu, khỏe khoắn. Bao trùm lên căn biệt thự này là màu ngói đỏ cùng các đường nét sắc sảo, nổi bật trên nền màu kem và màu xanh của cây cối xung quanh. Điều này hẳn sẽ tạo sức hút và để lại ấn tượng với khách thăm nhà.
Thiết kế biệt thự tân cổ điển - VNH BTTCD 0002
| Chủ đầu tư | Anh Hùng | Mã dự án | VNH BTTCD 0002 |
| Địa chỉ | xã Chiến thắng huyện An Lão , Hải Phòng | Diện tích | 8.5 x 11m |
| Hạng mục | Thiết kế biệt thự Tân cổ điển | Số tầng | 2,5 tầng |
| Đơn vị thiết kế | Công ty CP Kiến Trúc - Đầu Tư Xây Dựng VN Home | Năm thiết kế | 2017 |
Biệt thự tân cổ điển 2,5 tầng mặt tiền 8,5 m tại Hải Phòng
Toàn cảnh căn biệt thự tân cổ điển mặt tiền 8.5 m ở An Lão - Hải Phòng
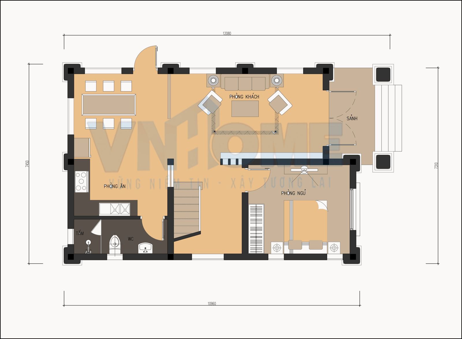
Mặt bằng công năng tầng 1 của biệt thự tân cổ điển bố trí đơn giản hợp lý
Bản vẽ bố trí mặt bằng công năng thiết kế biệt thự tân cổ điển 2 tầng
Mặt bằng công năng tầng tum của căn biệt thự tại Hải Phòng
.jpg)

.jpg)
.jpg)
.jpg)











